Grootkeuken-
planning

The perfect fit

Haalbaarheidsstudie in lijn met de normen van de FAVV (Federaal Agentschap voor de veiligheid van de voedselketen).

Wij denken conceptueel mee over optimale operationele werking, 3D modellen en budgetten. Zo creëren we een plaatje dat voor u juist aanvoelt.

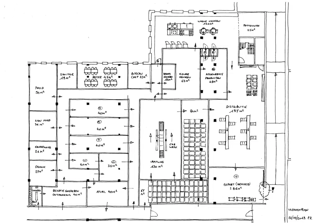
Grootkeukenplanning - Peter Roekens - planning - schets - interieurbureau - planningsbureau - ontwerpbureau - keukenontwerp - restaurantinrichting
Grootkeukenplanning - Peter Roekens - planning - schets - interieurbureau - planningsbureau - ontwerpbureau - keukenontwerp - restaurantinrichting

A safe & creative space

Operationeel, functioneel & veilig.

Elke uitdaging zetten we om in een positieve oplossing. Uw chefs kunnen zorgeloos experimenteren.

Outside the box

Wij werken niet met vaste leveranciers, maar hebben een open blik op kwalitatief & passend materiaal. Uw wensen, uw mensen.

Grootkeukenplanning - Peter Roekens - planning - schets - interieurbureau - planningsbureau - ontwerpbureau - keukenontwerp - restaurantinrichting
Grootkeukenplanning - Peter Roekens - planning - schets - interieurbureau - planningsbureau - ontwerpbureau - keukenontwerp - restaurantinrichting

Add some spice

Binnen onze grootkeukenplanning is er ruimte voor de beleving van de chefkoks, waarbij we u en uw keukenpersoneel onderdompelen in een creative food experience.

Zitten we eens samen voor de inrichting van uw grootkeuken?

Wenst u het totaalplaatje? Wij staan ook in voor uw restaurantinrichting

Restaurantinrichting

Every customer is granted the best seat in the house. Dompel uw klanten onder in een uniek restaurantconcept met digitale service, intelligente koelkasten en een spraakmakend design.

Grootkeukenplanning

What’s cooking in your kitchen? Wij werken een operationeel plaatje uit met ruimte voor de beleving van uw chefkoks en keukenpersoneel.

Kantoorinrichting

Your own creative environment met aandacht voor akoustiek, duurzaamheid en verlichting voor een optimale productiviteit.

Particulieren

Upon entering, a room should instantaneously put a smile on your face. Wij zorgen voor een licht, open , warm en bruisend interieur.